Edifício Hospitalar Guarulhos

SP - Guarulhos
Vila Moreira

Edifício Hospitalar Guarulhos disponível para locação ou venda, estrategicamente localizado no bairro Vila Moreira, uma das regiões mais tradicionais e bem posicionadas de Guarulhos. Inserido em um eixo central da cidade, o imóvel está a aproximadamente 1.000 metros do Centro de Guarulhos, próximo à Avenida Paulo Faccini e ao Bosque Maia, com fácil acesso às principais vias urbanas e conexões rápidas às rodovias Presidente Dutra e Ayrton Senna, além da proximidade com o Aeroporto Internacional de Guarulhos.

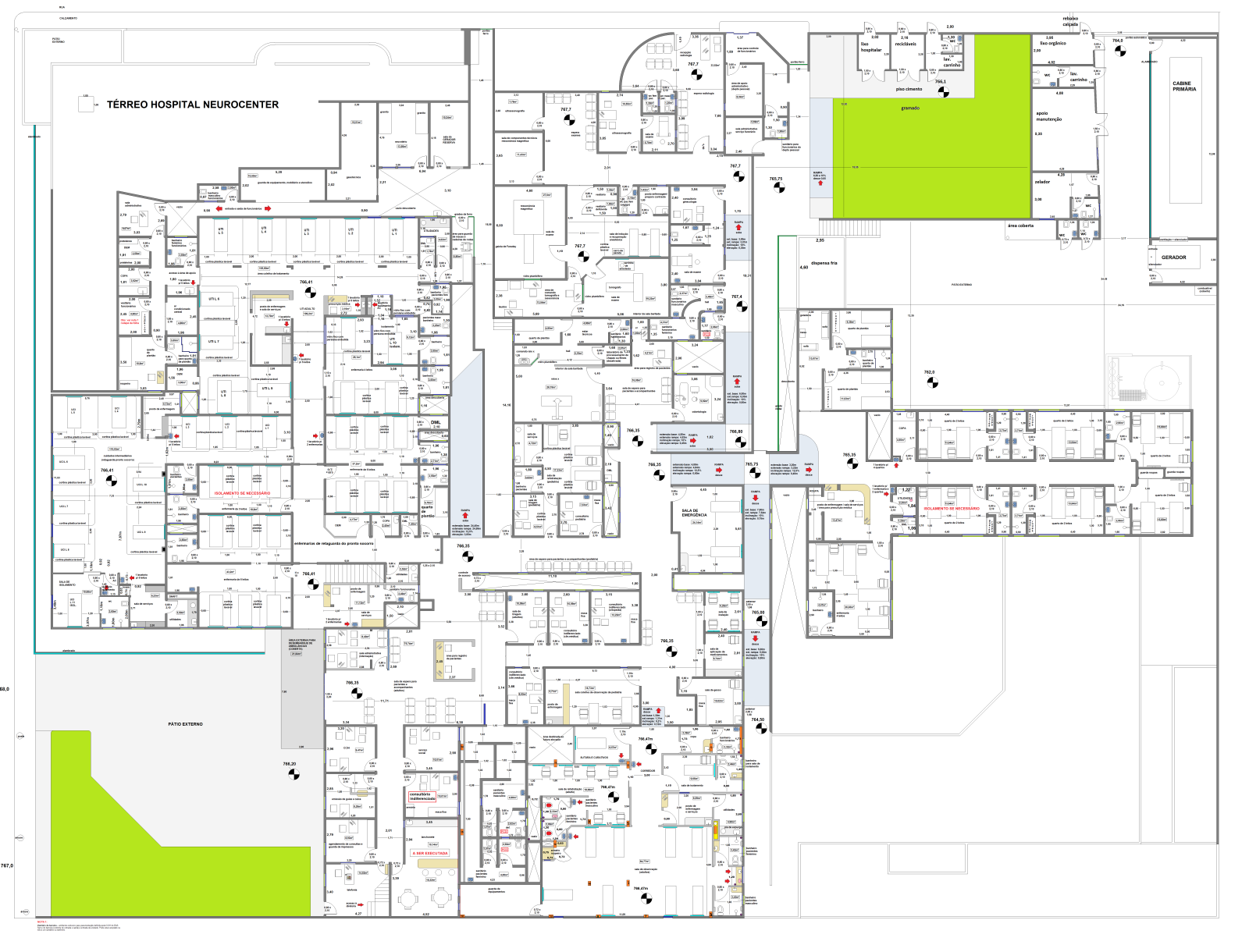
Implantado em um terreno de 5.204,20 m², o Edifício Hospitalar Guarulhos possui 4.519,89 m² de área construída, com perfil hospitalar completo e potencial de expansão de aproximadamente 600 m² em dois pavimentos, já com estrutura prevista. A infraestrutura necessita de reparos aparentes, contando com 110 leitos, distribuídos entre enfermarias adulto e infantil, UTI neonatal/pediátrica e UTI adulto, com possibilidade de ampliação para até 168 leitos após as adequações. O imóvel dispõe ainda de Pronto-Socorro adulto e infantil com cerca de 300 m², 6 salas cirúrgicas, 1 sala de hemodinâmica, além de áreas para diagnóstico e apoio médico, como laboratório clínico, radiologia, tomografia, ressonância magnética e ultrassonografia. O edifício encontra-se desocupado, sem passivos, e esteve em operação até abril de 2025, com documentação passível de regularização.

O entorno imediato do Edifício Hospitalar Guarulhos conta com ampla oferta de comércio, serviços e alimentação, além de diversas linhas de ônibus municipais e intermunicipais, com fácil conexão ao Centro de Guarulhos, terminais urbanos e à rede da CPTM (Linha 13-Jade). O imóvel é apoiado por dois estacionamentos terceirizados contíguos, totalizando aproximadamente 60 vagas, favorecendo o acesso diário de pacientes, colaboradores e visitantes.

  • ●  
    Andares: 4
  • ●  
    Áreas / andar: à 4534
Contato
  • ●  
    Estacionamento com Manobrista
  • ●  
    Segurança Patrimonial
  • ●  
    Forro Modular
  • ●  
    Sistema de Prevenção e Combate a Incêndios
  • ●  
    Luminárias

LOCALIZAÇÃO

Vila Moreira, Guarulhos - SP

GALERIA

Confira mais imagens de Edifício Hospitalar Guarulhos

PLANTAS DO IMÓVEL

Confira as plantas de Edifício Hospitalar Guarulhos

Preencha os dados abaixo para entrar em contato, responderemos o mais breve possível.

Informações de contato
Caracteristicas do imóvel
Para imóveis com metragem inferior enviar um email para info@spcorporate.com.br

Aviso

Este canal é somente para a comercialização de ativos imobiliários. Não passamos informações sobre as administrações dos edifícios.

OPORTUNIDADES

Neste espaço você encontrará imóveis com condições diferenciadas ou oportunidades de negócio pela SP CORPORATE.